Appartamento in Vendita
Classe energetica
ACQUISTO CON AGEVOLAZIONE SISMABONUS-ACQUISTI CON DETRAZIONE FISCALI FINO A € 34.560 IN 10 ANNI
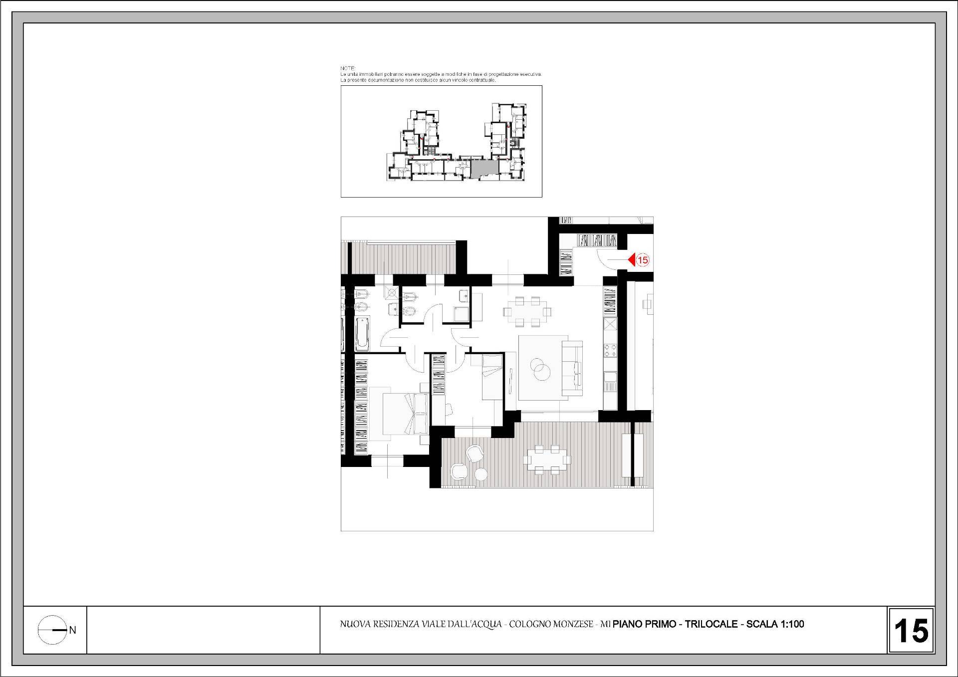
Via Dall'Acqua, a pochi passi dalla MM2 di Cologno Centro elegante palazzina di nuova costruzione costituita da n. 36 appartamenti rifiniti con materiale di alto pregio, proponiamo un Appartamento di 118 mq. posto al piano primo composto da un ampio soggiorno con cucina a vista, due camere da letto, doppi servizi finestrati, terrazzo di circa mq. 23, balcone e cantina al piano interrato.
L'edificio (privo di gas metano) sarà dotato di pannelli fotovoltaici, che permetteranno di utilizzare energia pulita e sostenibile per il riscaldamento a pavimento, acqua calda sanitaria e consumo elettrico delle parti comuni.
In sintesi, si tratta di un Appartamento moderno e funzionale, ideale per chi desidera una soluzione abitativa di qualità, in una zona centrale e ben servita, con tutte le comodità a portata di mano.
Possibilità di box singoli e doppi a partire da Euro 24.000,00
Contattaci per maggiori informazioni e per fissare un incontro
118 mq
2 Camere
2 Bagni










