Appartamento in Vendita
Classe energetica
ACQUISTO CON AGEVOLAZIONE SISMABONUS-ACQUISTI CON DETRAZIONE FISCALI FINO A € 34.560 IN 10 ANNI
L'Appartamento in Vendita si trova nel cuore di Cologno Monzese, a 200 metri dalla fermata della MM di Cologno Centro, e si presenta come una moderna e lussuosa abitazione.
Attualmente in fase di costruzione, sarà pronto per essere abitato nell'ottobre del 2027.
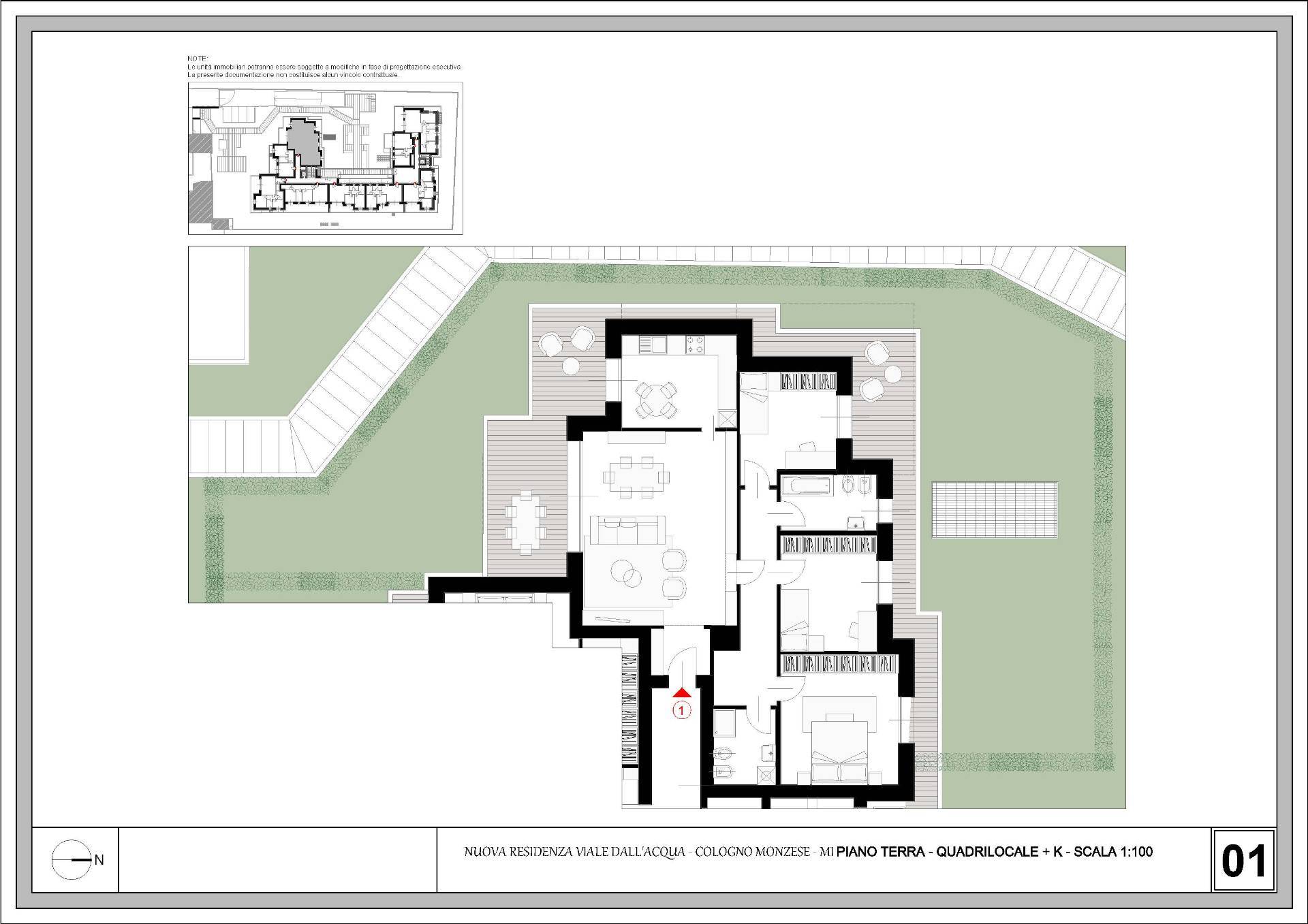
Situato al piano terra, ha una superficie commerciale di 169 metri quadrati, distribuiti in 4 locali spaziosi e luminosi, la zona giorno è composta da un ampio soggiorno con cucina abitabile, ideale per trascorrere piacevoli momenti in compagnia. La zona notte, invece, è composta da 3 camere da letto, perfetta per accogliere una famiglia numerosa o per ospitare eventuali ospiti.
Sono presenti inoltre due bagni, uno con doccia e uno con vasca, entrambi rifiniti con materiali di qualità.
I punti di forza dell'abitazione sono sicuramente i loggiati, ideali per godersi momenti di relax all'aperto o per pranzare e cenare all'aria aperta durante i mesi più caldi. Inoltre, l'Appartamento dispone di un ampio giardino di proprietà di 173 metri quadrati , perfetto per chi ha animali domestici o ama avere uno spazio verde a disposizione.
L'edificio (privo di gas metano) sarà dotato di pannelli fotovoltaici, che permetteranno di utilizzare energia pulita e sostenibile per il riscaldamento a pavimento, l'acqua calda sanitaria oltre al consumo elettrico delle parti comuni.
La sua moderna architettura e le finiture di qualità lo rendono una soluzione ideale per chi cerca un'abitazione elegante e confortevole nel cuore di Cologno Monzese.
Contattaci per maggiori informazioni e per fissare un incontro 0225390051
169 mq
3 Camere
2 Bagni





















