Appartamento in Vendita
Classe energetica
ACQUISTO CON AGEVOLAZIONE SISMABONUS-ACQUISTI CON DETRAZIONE FISCALE FINO A € 34.560 IN 10 ANNI
Proponiamo in Vendita un moderno Appartamento di nuova costruzione, con consegna prevista nell'autunno 2027, situato nel centro di Cologno Monzese, a 200 metri dalla fermata della MM di Cologno Centro.
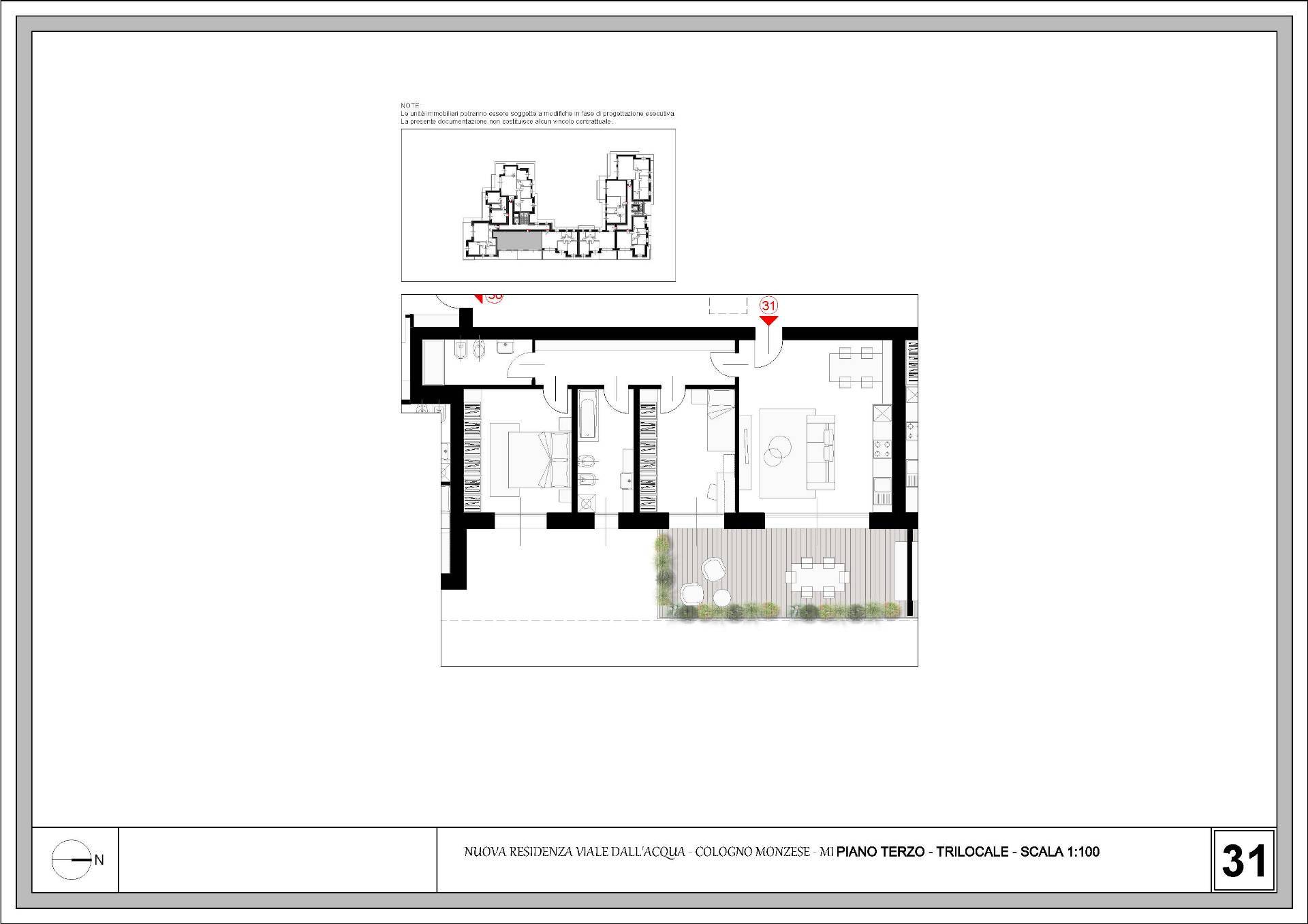
L'immobile, di circa 112 metri quadrati, è ubicato al piano terzo ed ultimo con terrazzo e vano cantina con possibilità di box. L'Appartamento è composto da 3 locali, di cui 2 camere da letto, ampio soggiorno, con angolo cottura, 2 bagni oltre a circa 24 metri quadrati di terrazzo, ideale per accogliere e trascorrere piacevoli momenti in compagnia.
L'edificio (privo di gas metano) sarà dotato di pannelli fotovoltaici, che permetteranno di utilizzare energia pulita e sostenibile per il riscaldamento a pavimento, l'acqua calda sanitaria e consumo elettrico delle parti comuni.
In sintesi, si tratta di un Appartamento moderno e funzionale, ideale per chi desidera una soluzione abitativa di qualità, in una zona centrale e ben servita, con tutte le comodità a portata di mano.
Contattaci per maggiori informazioni e per fissare un incontro
111 mq
2 Camere
2 Bagni









